695 Scout Road
Gallery
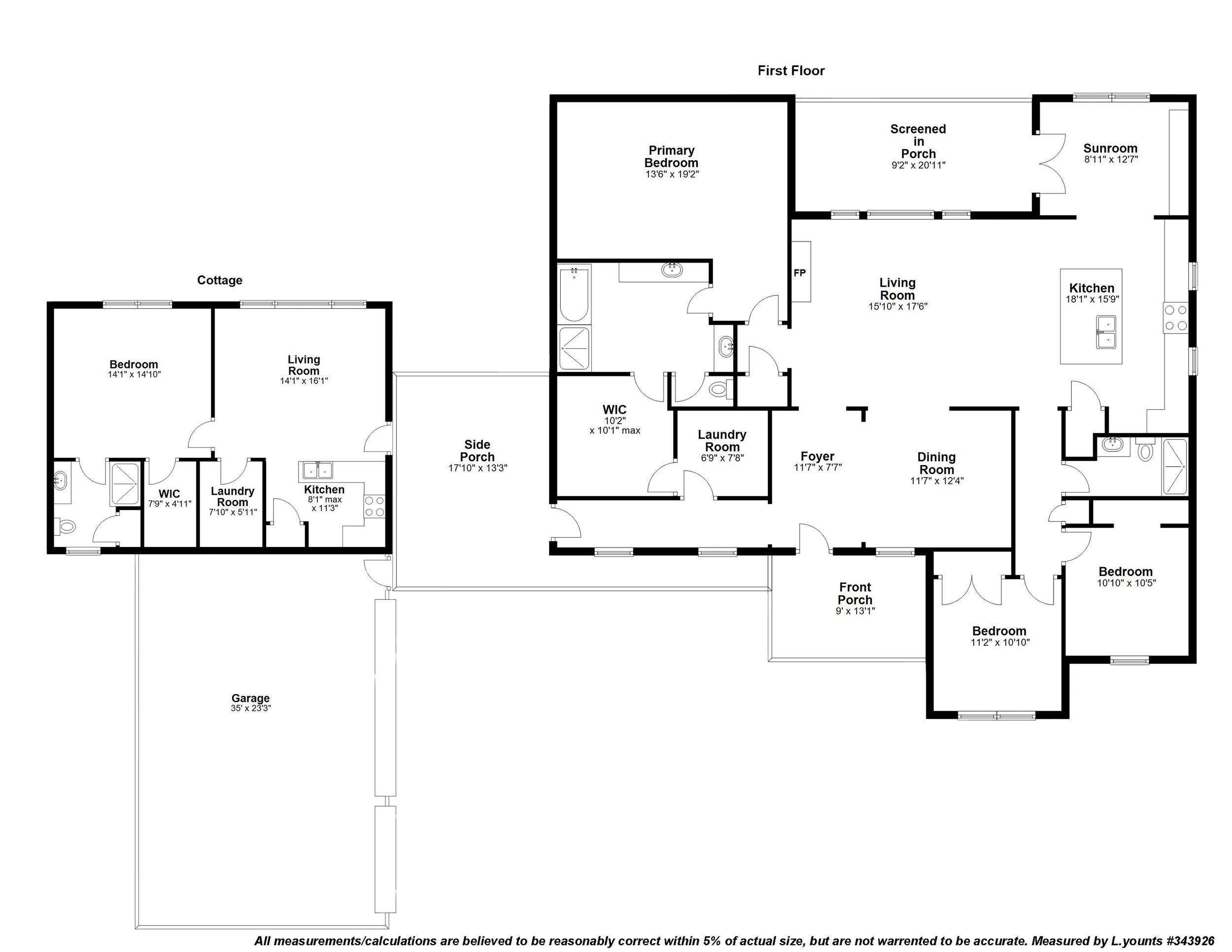
MEASUREMENTS PREVIEW
VIDEO
3D Virtual Tour
POST DELIVERY EDITING
Post Delivery Editing Services
Starting at $5
Other Photoshop Requests
SCHEDULE ADDITIONAL SERVICES
Walkthrough Video
3D Tours
Measurement Service
